Video Gallery Location Floor Plan Details Contact
Oceanfront timber-frame home exterior
Great room interior
Aerial of shoreline
Terrace with ocean view
Aerial of Salt Spring Island and Musgrave Landing community docks
Waterfront home on 1/2 acre.
Video - Full Property Tour
Location - Arrive by Road or Sea

Road Access

A public road connects Musgrave Landing to the rest of Salt Spring Island. This is a 11Km gravel road maintained by the provincial government. The route keeps the area peaceful and fosters a tight-knit community spirit—while still giving you the freedom to come and go as you please.

Water Access

  • Community dock: ~700+ ft of protected moorage; owners are allocated 33' of dock space which is included in annual strata fees and managed by Strata Council.
  • Private dock: Existing private dock can accommodate 2 - 24' commuter boats.
  • Crossing time to Cowichan Bay: About 10–15 minutes by boat from either the private dock or the community dock.

Note: Lot 1 is on Smith Road (public). Musgrave Place is a private, Strata-managed road servicing shared assets.

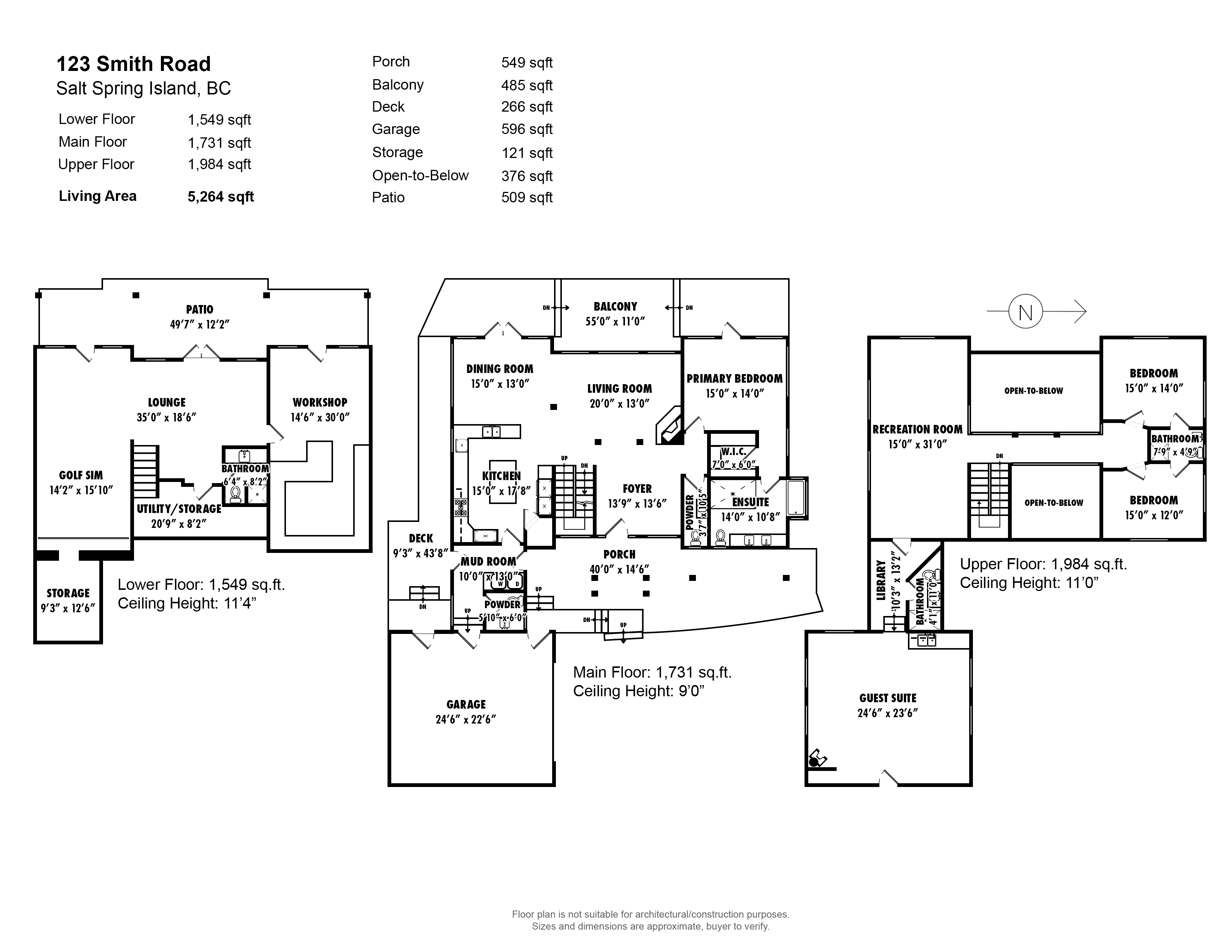
Floor Plan

Click on the image to download a high resolution PDF.

Floor plan preview
Numbers & notes

FAQs & Key Details

  • Bedrooms: 3 beds + studio guest suite
  • Bathrooms: 4 full + 2 powder
  • Kitchens: Custom kitchen with cherry cabinets and soapstone countertops
  • Levels: 3 levels
  • Parking: Oversized 2-car garage (596 sqft) + outdoor parking
  • Living area: 5,264 sqft
  • Lot size: 0.49 acres (21,344 sqft)
  • Private Dock will accommodate boats up to approx 24'

Salt Spring Island waterfront home for sale in coveted Musgrave Landing—an architecturally striking timber-frame residence on a private ½-acre oceanfront lot with a private dock and access to deep-water moorage. Offering approximately 5,264 sq ft over three levels, this road-accessible Gulf Islands retreat blends West Coast craftsmanship with modern luxury.

The main home features 3 bedrooms plus a flexible studio guest suite, 4 full bathrooms and 2 powder rooms, generous indoor–outdoor living, and an oversized two-car garage (≈596 sq ft). Thoughtful extras include a fully equipped woodworking shop, dedicated cold storage, and a year-round golf simulator—all ideal for work, hobbies, and entertaining.

Set within a well-managed Bare Land Strata, owners enjoy amenities rarely found on Salt Spring: a large community dock with deep-water moorage (historically ~33' per lot; buyer to confirm), plus a tennis/pickleball court and shared green spaces. From your dock it’s roughly a 10–15 minute boat ride to Cowichan Bay on Vancouver Island—perfect for groceries, the farmers’ market, dining, and services.

Offered at $2,395,000 CAD — Private sale by owner. Book your viewing to experience Salt Spring Island’s best combination of waterfront, moorage, privacy, and access.

Keywords: Salt Spring Island real estate, oceanfront house BC, waterfront property with dock, deep-water moorage, Musgrave Landing homes, Gulf Islands luxury waterfront.

  • Property Taxes (No Grant): $7,166.82
  • Property Taxes (Regular Grant): $6,596.82
  • Property Taxes (Additional Grant): $6,321.82
  • 2026 Assessed Value: 2,691,000
  • Strata Fees for 2025/2026: $2,217.24

Owners note typical annual Strata fees are about $2,300 (excl. special levies).

  • Power: ~$125 / month
  • Internet*: Starlink, ~$150 / month
  • Cable: not used

*Connected Coast initiative will bring fiber optic cable to the house this year

  • All inclusive package offered at $2,395,000 CAD.
  • Workshop - Approx. 500 sqft shop including tablesaw, planer, jointer, drill press, bandsaw, 18" power sander and a selection of popular hand tools.
  • Golf Simulator - Uneekor QED with The Golf Club 2019—great for improving your game or just having fun.
  • Private Dock suitable for boats up to 24' long
  • Access to deep water moorage on community docks for boats to 33' is included in strata fees.

Musgrave Landing is a 23-lot bare-land Strata which includes the following common assets:

  • Community dock (approx 700')
  • Boat Launch ramp
  • Tennis / pickle-ball court
  • Six Strata-managed wells
  • Community sewer for Lots 9–20 (Lot 1 not included)

STRATA LOT 1, PLAN VIS1453, SECTION 46, COWICHAN LAND DISTRICT, PORTION SOUTH SALT SPRING, TOGETHER WITH AN INTEREST IN THE COMMON PROPERTY IN PROPORTION TO THE UNIT ENTITLEMENT OF THE STRATA LOT AS SHOWN ON FORM 1 OR V, AS APPROPRIATE

PID: 002-727-145

Realtors and/or referrers will be remunerated according to a standard buyer's commission upon completion of the sale.

Contact

All inclusive package offered at $2,395,000 CAD.

Give us a call or fill out the form below.

Call: 1‑250‑222‑0372

Prefer email? Musgrave.Landing@gmail.com

Share

Know someone who’d love it here? Share this page or scan the QR below to open the site.

QR code to musgravelanding.com

Follow

Facebook: Musgrave Landing